




Plot for sale
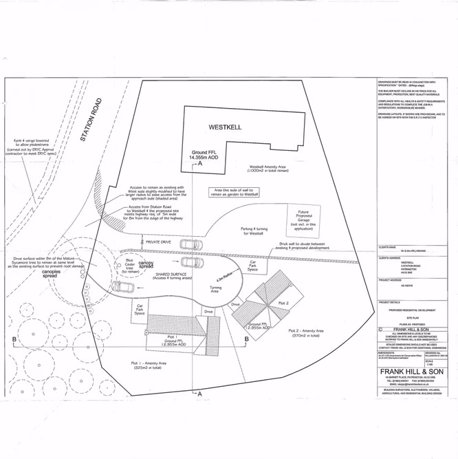
Always dreamed of building your own home? This delightful plot on the edge of Patrington, with access to all the amenities it offers, could well be what you are looking for. Planning permission was granted for two houses on the site and only
Plot for sale
Description
Always dreamed of building your own home? This delightful plot on the edge of Patrington, with access to all the amenities it offers, could well be what you are looking for. Planning permission was granted for two houses on the site and only
Contact Agent
Smart Picks — Professionals Relevant to This Land
Based on this property's key features, here are the specialists you may want to consult as part of your due diligence: land agents, rural solicitors and planning consultants.

Land Agents
Essential for navigating the land market, finding buyers, and securing the best price.

Rural Solicitors
Significant investment (£145K+) requires legal expertise for conveyancing, title checks, and transaction security.

Planning Consultants
Planning-sensitive site needs expert guidance for applications and development strategy.
Location
Station Road